Plan Code : WC2-010
Dimension (กว้าง x ยาว x สูง)
19.80 M Width
13.60 M Depth
8.90 M Height
269 sq m
4 Beds
3 Baths
2 Floors
2 Carport
ข้อมูลทั่วไป
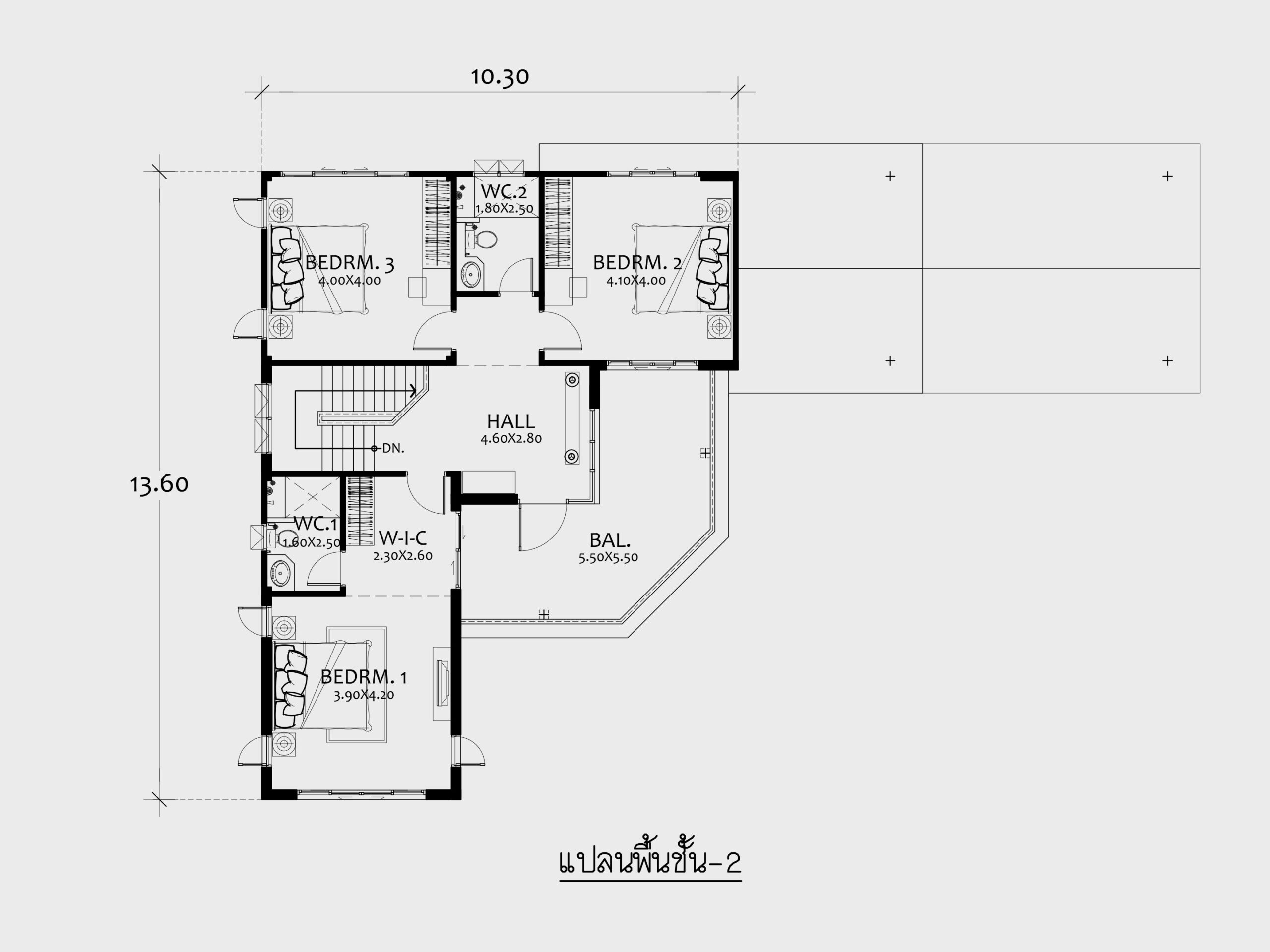
แบบบ้านสองชั้น สไตล์อิงลิชคอทเทจ ดูอบอุ่น อ่อนโยน ดูหรูหราด้วยวัสดุตบแต่งธรรมชาติ มีหน้าต่างทรงสูง เพื่อเปิดรับแสงธรรมชาติ และช่วยระบายอากาศ โดดเด่นที่การวางอาคารเป็นรูปตัวแอล(L) มีห้องนั่งเล่นทรงแปดเหลี่ยม ที่เปิดมุมมองไปยังสวนหน้าบ้านได้อย่างเหมาะเจาะ ชั้นล่างมีห้องรับแขกที่สามารถกั้นห้องเป็นสัดส่วน ห้องนั่งเล่นที่เปิดต่อเนื่องกับห้องทานอาหาร มีครัว และซักล้างทางด้านหลังบ้าน มีห้องนอน 1 ห้องที่อาจดัดแปลงเป็นห้องดูหนังฟังเพลงได้อย่างลงตัว ที่ชั้นสอง มีโถงขนาดเล็ก ที่สามารถเปิดออกสู่ระเบียงกว้างไว้ชมสวนสวยๆ มีห้องนอนใหญ่ ที่มีห้องน้ำในตัว และห้องนอนเล็ก 2 ห้อง ที่ใช้ห้องน้ำร่วมกัน นับว่าเป็นบ้านที่ครบครันด้วยพื้นที่สำหรับทุกคนในครอบครัว
ราคาแบบ WC2-010
Preview Set
8,500 บาท
แบบเพื่อนำไปดูภาพรวม ดูความเป็นไปได้ของโครงการ เพื่อช่วยในการตัดสินใจเบื้องต้นเท่านั้น ไม่สามารถนำไปประกอบการยื่นขออนุญาติก่อสร้าง หรือนำไปก่อสร้างจริงได้ เนื่องจากไม่มีรายละเอียดเพียงพอ (ประกอบด้วย ภาพแปลน ทุกชั้น , รูปด้าน 4 ด้าน , ภาพสามมิติอาคารโดยรอบ และ รายการสเปควัสดุ)
Single Set
58,500 บาท
แบบก่อสร้าง ที่มีรายละเอียดครบถ้วน สามารถนำไปใช้ยื่นขออนุญาติก่อสร้างกับหน่วยงานราชการ และก่อสร้างจริง (ในชุดประกอบด้วย แบบก่อสร้าง จำนวน 1 เล่ม, แบบชุดพรีวิว,รายการคำนวณโครงสร้าง และเอกสารรับรองการออกแบบของสถาปนิก และวิศวกร)
Construction Prompt Set
59,500 บาท
แบบก่อสร้าง ที่มีรายละเอียดครบถ้วน สามารถนำไปใช้ยื่นขออนุญาติก่อสร้างกับหน่วยงานราชการ และก่อสร้างจริง (ในชุดประกอบด้วย แบบก่อสร้าง จำนวน 7 เล่ม, แบบชุดพรีวิว,รายการคำนวณโครงสร้าง และเอกสารรับรองการออกแบบของสถาปนิก และวิศวกร)
Image Set
(สอบถามเพิ่มเติม)
แบบชุดพร้อมสร้าง&ไฟล์ภาพของแบบก่อสร้างที่คุณสามารถนำไป Print copy เพิ่ม กี่ชุดก็ได้ (ประกอบด้วยแบบก่อสร้าง จำนวน 7 ชุด,รายการคำนวณโครงสร้าง 1 ชุด,เอกสารรับรองการออกแบบ และแบบก่อสร้างเป็นไฟล์ภาพ สามารถนำไป print copy เองกี่ชุดก็ได้)
Drawing Set
(สอบถามเพิ่มเติม)
แบบชุดพร้อมสร้าง&ไฟล์งาน(File) ของแบบก่อสร้าง ที่คุณสามารถนำไปให้สถาปนิก หรือวิศวกรที่มีความชำนาญ ปรับแบบตามความต้องการ และนำไป Print copy เพิ่มกี่ชุดก็ได้ (ประกอบด้วยแบบก่อสร้าง จำนวน 7 ชุด,รายการคำนวณโครงสร้าง ,เอกสารรับรองการออกแบบ และไฟล์แบบก่อสร้าง)
แบบก่อสร้างเพิ่มชุดละ
900 บาท
เป็นราคาเพิ่มจากราคาแบบตั้งต้น ในกรณีที่ต้องการเพิ่มจำนวนชุด ของแบบก่อสร้าง
กลับแปลนซ้าย-ขวา เพิ่ม
2,500 บาท
เป็นราคาเพิ่มจากราคาแบบตั้งต้น กรณีต้องการกลับแบบจากซ้าย ไปขวา ในขั้นตอนการเสนอราคาค่าแบบ





