Plan Code : CT2-016
Dimension (กว้าง x ยาว x สูง)
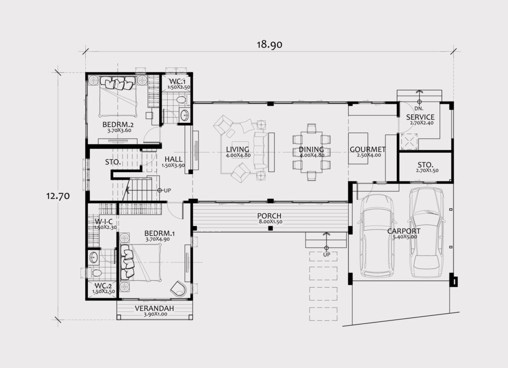
18.90 M Width
12.70 M Depth
8.90 M Height
239 sq m
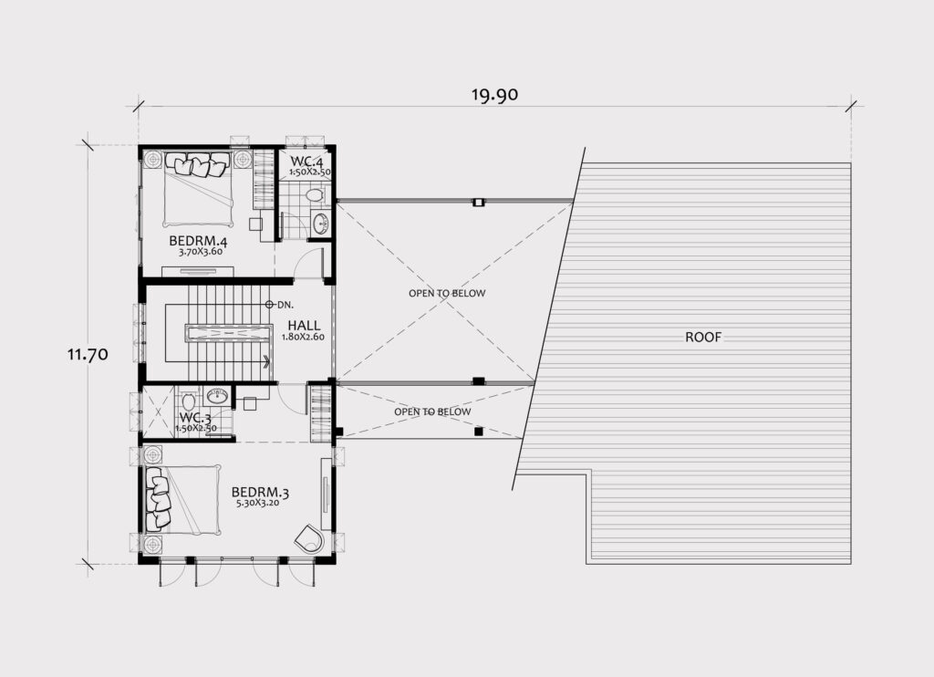
4 Beds
4 Baths
2 Floors
2 Carport
ข้อมูลทั่วไป
แบบบ้านหน้ากว้าง สไตล์คอนเทมโพรารี่ โดดเด่นด้วยการวางผังการใช้งานที่เน้นพื้นที่สวนด้านหน้าบ้าน ทำให้บ้านดูใหญ่ และกว้างกว่าบ้านทั่วไป โถงสูงตรงกลางบ้าน คือส่วนรับแขก ที่ต่อเนื่องเป็นห้องเดียวกันกับส่วนทานอาหาร พื้นที่ส่วนนี้ดูกว้างขวาง สามารถปรับเปลี่ยนการใช้สอยได้หลากรูปแบบ โต๊ะทานอาหารต่อเนื่องกับส่วนเตรียมอาหาร และครัวไทยที่เป็นสัดส่วน และช่วยป้องกันกลิ่นไม่พึงประสงค์ไม่ให้เข้าบ้านได้เป็นอย่างดี ชั้นล่างมีห้องนอน 2 ห้อง มีห้องหนึ่งที่เป็นห้องน้ำในตัว ส่วนอีกห้องใช้ห้องน้ำส่วนกลาง ส่วนชั้นบน มี 2 ห้องนอน ที่มีห้องน้ำในตัวทั้งสองห้อง โถงบันไดแบบโปร่งโล่ง สามารถมองเห็นพื้นที่รับแขก-ทานอาหารได้ ช่วยสร้างความรู้สึกใกล้ชิดที่ทุกคนในบ้านได้ใช้พื้นที่ส่วนกลางร่วมกัน และห้องที่สำคัญที่สุด เราตั้งใจออกแบบเพื่อให้มีการระบายอากาศที่ดี เพื่อบ้านเย็นสบายตลอดทั้งวัน เหมาะสำหรับเป็นบ้านสบาย สำหรับการพักผ่อน ในทุกๆวันของครอบครัวคุณ
ราคาแบบ CT2-016
Preview Set
7,000 บาท
แบบเพื่อนำไปดูภาพรวม ดูความเป็นไปได้ของโครงการ เพื่อช่วยในการตัดสินใจเบื้องต้นเท่านั้น ไม่สามารถนำไปประกอบการยื่นขออนุญาติก่อสร้าง หรือนำไปก่อสร้างจริงได้ เนื่องจากไม่มีรายละเอียดเพียงพอ (ประกอบด้วย ภาพแปลน ทุกชั้น , รูปด้าน 4 ด้าน , ภาพสามมิติอาคารโดยรอบ และ รายการสเปควัสดุ)
Single Set
50,500 บาท
แบบก่อสร้าง ที่มีรายละเอียดครบถ้วน สามารถนำไปใช้ยื่นขออนุญาติก่อสร้างกับหน่วยงานราชการ และก่อสร้างจริง (ในชุดประกอบด้วย แบบก่อสร้าง จำนวน 1 เล่ม, แบบชุดพรีวิว,รายการคำนวณโครงสร้าง และเอกสารรับรองการออกแบบของสถาปนิก และวิศวกร)
Construction Prompt Set
51,500 บาท
แบบก่อสร้าง ที่มีรายละเอียดครบถ้วน สามารถนำไปใช้ยื่นขออนุญาติก่อสร้างกับหน่วยงานราชการ และก่อสร้างจริง (ในชุดประกอบด้วย แบบก่อสร้าง จำนวน 7 เล่ม, แบบชุดพรีวิว,รายการคำนวณโครงสร้าง และเอกสารรับรองการออกแบบของสถาปนิก และวิศวกร)
Image Set
(สอบถามเพิ่มเติม)
แบบชุดพร้อมสร้าง&ไฟล์ภาพของแบบก่อสร้างที่คุณสามารถนำไป Print copy เพิ่ม กี่ชุดก็ได้ (ประกอบด้วยแบบก่อสร้าง จำนวน 7 ชุด,รายการคำนวณโครงสร้าง 1 ชุด,เอกสารรับรองการออกแบบ และแบบก่อสร้างเป็นไฟล์ภาพ สามารถนำไป print copy เองกี่ชุดก็ได้)
Drawing Set
(สอบถามเพิ่มเติม)
แบบชุดพร้อมสร้าง&ไฟล์งาน(File) ของแบบก่อสร้าง ที่คุณสามารถนำไปให้สถาปนิก หรือวิศวกรที่มีความชำนาญ ปรับแบบตามความต้องการ และนำไป Print copy เพิ่มกี่ชุดก็ได้ (ประกอบด้วยแบบก่อสร้าง จำนวน 7 ชุด,รายการคำนวณโครงสร้าง ,เอกสารรับรองการออกแบบ และไฟล์แบบก่อสร้าง)
แบบก่อสร้างเพิ่มชุดละ
700 บาท
เป็นราคาเพิ่มจากราคาแบบตั้งต้น ในกรณีที่ต้องการเพิ่มจำนวนชุด ของแบบก่อสร้าง
กลับแปลนซ้าย-ขวา เพิ่ม
2,000 บาท
เป็นราคาเพิ่มจากราคาแบบตั้งต้น กรณีต้องการกลับแบบจากซ้าย ไปขวา ในขั้นตอนการเสนอราคาค่าแบบ









