Plan Code : MC1-014
Dimension (กว้าง x ยาว x สูง)
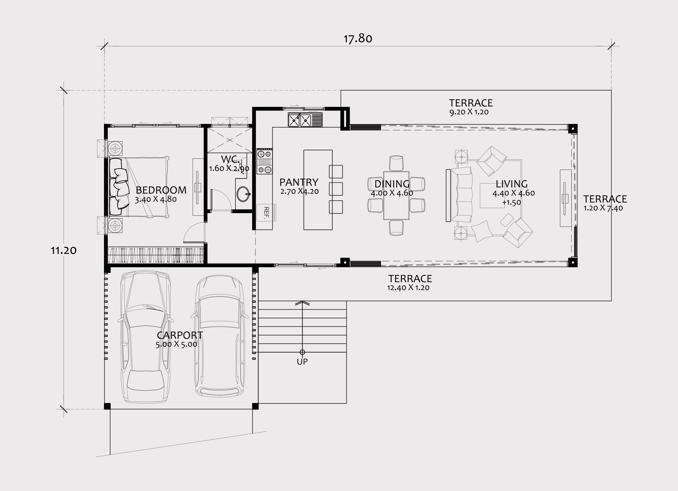
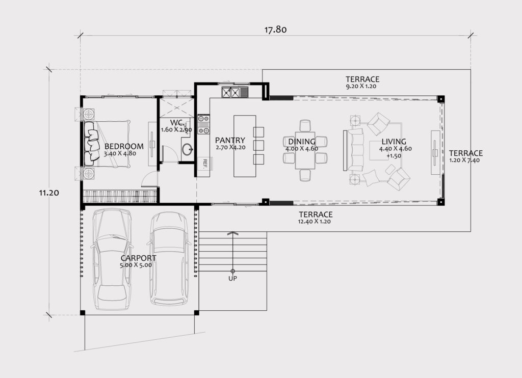
11.80 M Width
11.20 M Depth
6.00 M Height
155 sq m
1 Beds
1 Baths
1 Floors
2 Carport
ข้อมูลทั่วไป
แบบบ้านยกใต้ถุน สไตล์โมเดิร์นคอนเทมโพรารี่ เป็นบ้านอารมณ์รีสอร์ท ยกพื้นที่ใช้สอยหลักไว้ให้สูง พื้นที่ด้านล่างเป็นพื้นที่จอดรถ โดดเด่นที่ความโปร่งโล่งสบาย ของห้องรับแขก-ทานอาหาร และส่วนเตรียมอาหาร ที่โล่ง และโปร่งสบาย มีเฉลียงล้อมรอบถึงสามด้าน ตัวบ้านถูกออกแบบให้มีเส้นสายแบบโมเดิร์น เรียบง่าย แต่หรูหราในรายละเอียด มีตกแต่งด้วยโทนสีไม้ เพื่อให้บ้านดูอบอุ่นขึ้น เน้นพื้นที่เปิดโล่ง ช่องเปิดที่กว้างขวาง เพื่อเปิดมุมมองสู่ภายนอก มีชายคายื่นยาวเพื่อป้องกันความร้อนจากแสงอาทิตย์ ครบครันสำหรับครอบครัว ที่ชอบบ้านที่โปร่ง โล่ง ในไลฟ์สไตล์ทันสมัยเช่นคุณ
ราคาแบบ MC2-014
Preview Set
6,500 บาท
แบบเพื่อนำไปดูภาพรวม ดูความเป็นไปได้ของโครงการ เพื่อช่วยในการตัดสินใจเบื้องต้นเท่านั้น ไม่สามารถนำไปประกอบการยื่นขออนุญาติก่อสร้าง หรือนำไปก่อสร้างจริงได้ เนื่องจากไม่มีรายละเอียดเพียงพอ (ประกอบด้วย ภาพแปลน ทุกชั้น , รูปด้าน 4 ด้าน , ภาพสามมิติอาคารโดยรอบ และ รายการสเปควัสดุ)
Single Set
41,550 บาท
แบบก่อสร้าง ที่มีรายละเอียดครบถ้วน สามารถนำไปใช้ยื่นขออนุญาติก่อสร้างกับหน่วยงานราชการ และก่อสร้างจริง (ในชุดประกอบด้วย แบบก่อสร้าง จำนวน 1 เล่ม, แบบชุดพรีวิว,รายการคำนวณโครงสร้าง และเอกสารรับรองการออกแบบของสถาปนิก และวิศวกร)
Construction Prompt Set
42,550 บาท
แบบก่อสร้าง ที่มีรายละเอียดครบถ้วน สามารถนำไปใช้ยื่นขออนุญาติก่อสร้างกับหน่วยงานราชการ และก่อสร้างจริง (ในชุดประกอบด้วย แบบก่อสร้าง จำนวน 7 เล่ม, แบบชุดพรีวิว,รายการคำนวณโครงสร้าง และเอกสารรับรองการออกแบบของสถาปนิก และวิศวกร)
Image Set
(สอบถามเพิ่มเติม)
แบบชุดพร้อมสร้าง&ไฟล์ภาพของแบบก่อสร้างที่คุณสามารถนำไป Print copy เพิ่ม กี่ชุดก็ได้ (ประกอบด้วยแบบก่อสร้าง จำนวน 7 ชุด,รายการคำนวณโครงสร้าง 1 ชุด,เอกสารรับรองการออกแบบ และแบบก่อสร้างเป็นไฟล์ภาพ สามารถนำไป print copy เองกี่ชุดก็ได้)
Drawing Set
(สอบถามเพิ่มเติม)
แบบชุดพร้อมสร้าง&ไฟล์งาน(File) ของแบบก่อสร้าง ที่คุณสามารถนำไปให้สถาปนิก หรือวิศวกรที่มีความชำนาญ ปรับแบบตามความต้องการ และนำไป Print copy เพิ่มกี่ชุดก็ได้ (ประกอบด้วยแบบก่อสร้าง จำนวน 7 ชุด,รายการคำนวณโครงสร้าง ,เอกสารรับรองการออกแบบ และไฟล์แบบก่อสร้าง)
แบบก่อสร้างเพิ่มชุดละ
700 บาท
เป็นราคาเพิ่มจากราคาแบบตั้งต้น ในกรณีที่ต้องการเพิ่มจำนวนชุด ของแบบก่อสร้าง
กลับแปลนซ้าย-ขวา เพิ่ม
2,000 บาท
เป็นราคาเพิ่มจากราคาแบบตั้งต้น กรณีต้องการกลับแบบจากซ้าย ไปขวา ในขั้นตอนการเสนอราคาค่าแบบ













